【建築条件付き売地】多摩市一ノ宮2区画!
2025/07/13
【建築条件付き売地】多摩市一ノ宮2区画!
この度は、建築条件付きの土地売りとなります。
京王線「聖蹟桜ヶ丘」駅徒歩8分の駅近物件!
2区画共に敷地面積30坪以上の南道路幅員4mの公道に接道の整形地!
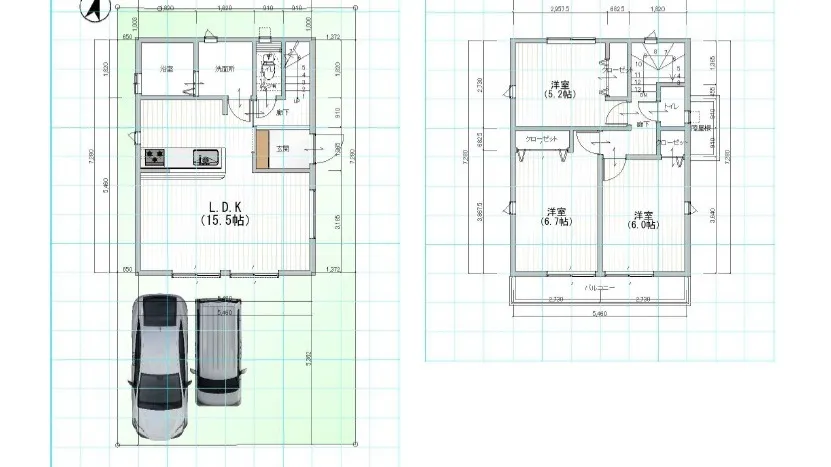
1区画は土地面積102.09㎡(約30.88坪)で、参考プランでは建物LDK15帖以上の3LDK。
2階主寝室は6.7帖以上で各居室にはウォークインクローゼット付き!
駐車2台並列可。
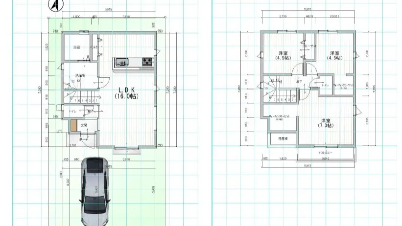
2区画は土地面積102.08㎡(約30.87坪)で建物リビング広々16帖にパントリー付き!
ご家族でのコミュニケーションもとりやすいリビングイン階段で、2階主寝室は広々7帖以上にウォークインクローゼットもあります。
2区画共に南道路に接道の為、陽当り良好で、建物請負1580万円から建築可能です!
建物の仕様や外観、建具やフローリングの色味など、実際のカットサンプルやパースを用いて丁寧にご説明させていただきます。
また、各ご家庭の生活動線(水回りは2階に欲しい、3LDKではなく4LDK等)や好みをプランに反映し、ご自身だけのお家を建築可能です。
お近くの完成現場やモデル棟もご案内可能ですので、お気軽にお問い合わせください。
駅近く、周辺には商業施設が多く、また小学校も近いので通学や通勤、ご生活に大変便利な立地となりますので是非ご検討ください。
弊社では、売買に関しまして、住宅ローンのご相談や住み替え、相続などどんなことでもお気軽にお問い合わせください。
また、売買のみならず賃貸や管理も行っております。
羽村市以外でも不動産のことなら全栄お任せください!
#建築 #条件付き #売地 #土地 #区画 #京王線 #聖蹟桜ヶ丘 #整形地 #公道 #多摩市 #一ノ宮 #羽村市 #売買 #請負 #住宅ローン #住み替え #相続 #賃貸 #管理 #不動産 #敷地 #面積 #LDK #プラン #間取り







